Новости компании
Разработан проект электрики для дома 245 м.кв.
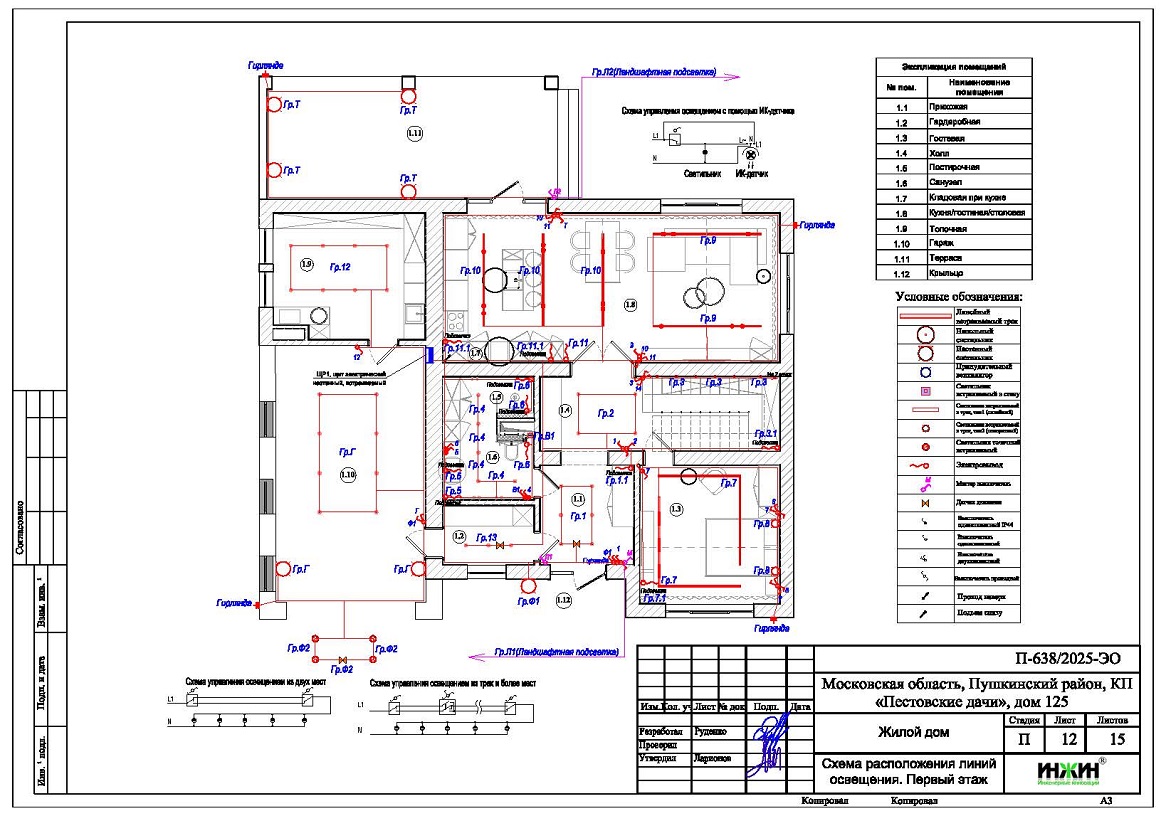
Разработан проект электрики (электропроводки) для газобетонного дома площадью 245м.кв., расположенного в КП «Пестовские дачи», Пушкинского г.о, Московской области.
Проект электрики брусового дома в КП «Пестовские дачи»содержит следующие технические решения:
- Выполнен расчет схемы электроснабжения, электрическая мощность дома составила 15,51 кВт, с учетом коэффициента спроса 0,6, принятого согласно СП 256.1325800.2016;
- Автоматические выключатели (УЗО) в количестве 38 шт., которые размещены в двух распределительных щитах ABB;
- Электропроводка предусмотрена скрытым способом на стенах и стяжке пола;
- Общая протяженность электропроводки 1315 метров, слаботочных линий - 300 метров.
Цена проекта электрики – 19 967руб. со скидкой 10%, объем проекта – 15 листов.
Подробное описание выполненного проекта электрики дома в КП «Пестовские дачи», Пушкинского г.о, Московской области.
Заказать проект электрики частного дома дистанционно.
17 апреля 2025 года
- Информация о материале
- Просмотров: 4342
Поделиться :















